Na-isolatie plat dak binnenkant (dakisolatie) – Appartement – 1935, Rotterdam
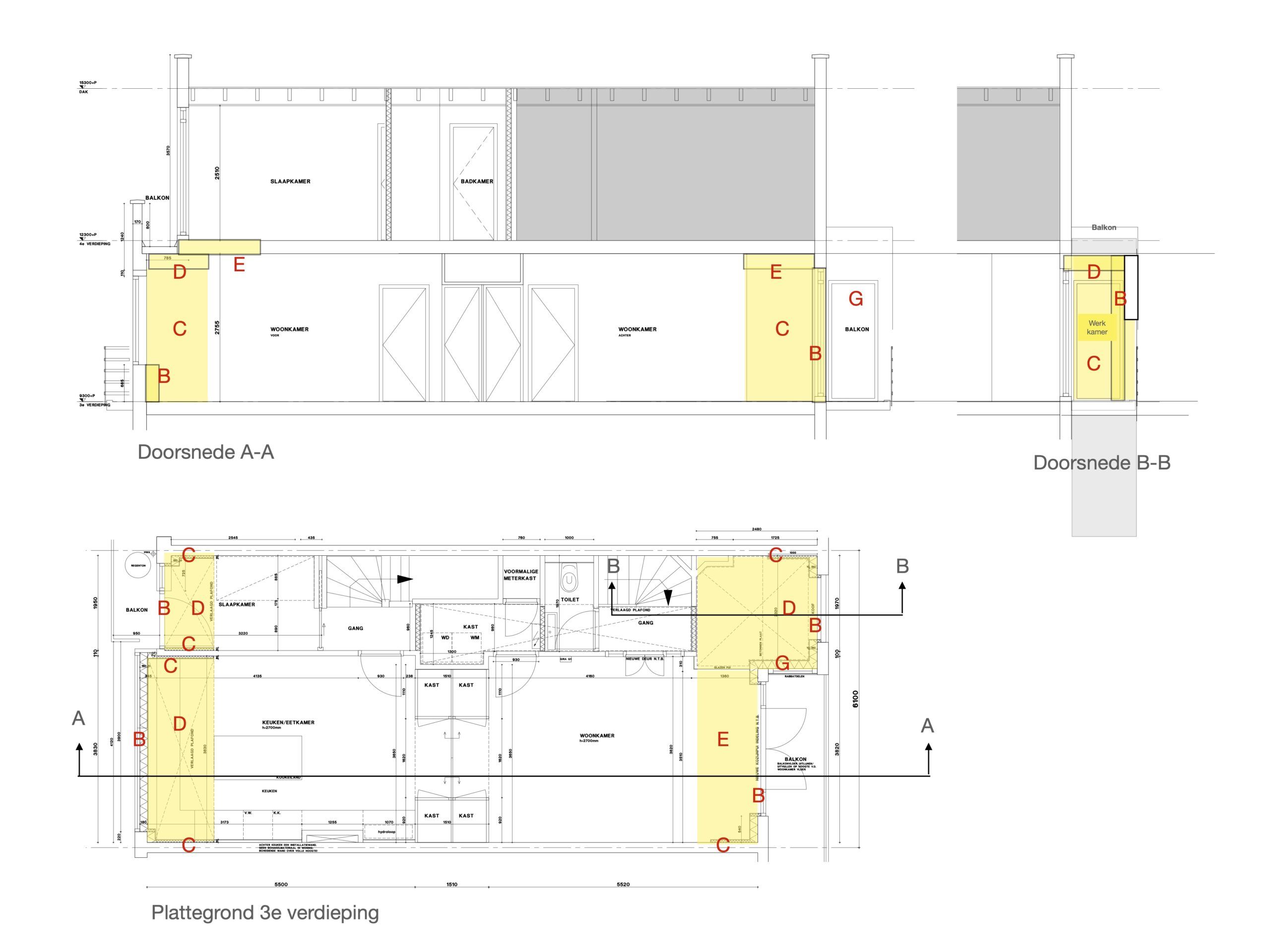
De woning heeft een zgn. doos-in-doos oplossing waarbij het grootste deel v.v. is van Isovlas. De zijflanken zijn ivm de dikte en de isolatiewaarde in PIR uitgevoerd.
De woning heeft een zgn. doos-in-doos oplossing waarbij het grootste deel v.v. is van Isovlas. De zijflanken zijn ivm de dikte en de isolatiewaarde in PIR uitgevoerd.
We use cookies and similar technologies to improve your experience on our website.