Vrijstaande woning – 1955, Den Haag
Omschrijving
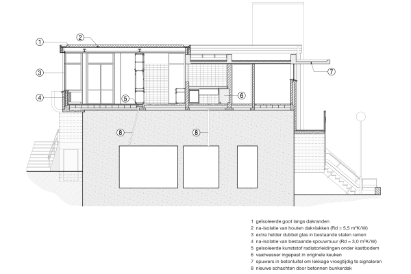
Het Woonhuis op de Bunker (1955) is een bijzonder rijksmonument. Woonhuis, tuin en het nog oorspronkelijke interieur zijn in 2007 opgenomen in de Top 100 van Nederlandse wederopbouwmonumenten. Met een recente restauratie (2017-2019) is de woning weer volledig in oude luister hersteld. Het gegeven dat alle installaties aan vernieuwing toe waren is aangegrepen om een nieuw klimaatneutraal installatieconcept uit te werken. De woning, die sinds de restauratie ‘van het gas af’ is, is zonder noemenswaardige aanpassingen aan de bestaande detaillering toch grondig geïsoleerd. Het platte dak is voorzien van een grote hoeveelheid PV-panelen en zonnecollectoren, die zodanig geplaatst zijn dat ze vanaf maaiveld niet zichtbaar zijn. Nieuwe leidingen en afvoeren zijn onzichtbaar weggewerkt in het historische interieur door op strategische plaatsen sparingen te boren door het metersdikke dak van de bunker.
Toegepaste maatregelen
Extra informatie
Beschrijving (na)isolatie van de woning
Beschrijving energievoorziening van de woning
Biomassaketel i.c.m. PV-panelen en zonnecollectoren.
Hoe is de ventilatie geregeld?
Kenmerken
Kaart
Display external content from Google Maps.
Display external content from Google Maps.
📍 Het exacte adres wordt niet getoond.



















