Vrijstaande woning – 1965/2011, Anloo
Omschrijving
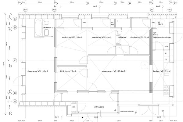
Ons huis (warmejashuis) is een bungalow uit de jaren 60 waar we een goed geïsoleerde houtskeletbouw ‘jas’ overheen hebben laten bouwen. Het oude huis staat dus nog in het nieuwe. Zo hebben we veel bouwafval voorkomen en minder bouwmateriaal gebruikt. Door deze opzet is een een bijzonder en speels huis geworden.
Het huis is zo gebouwd, dat het op termijn energieneutraal kan worden, al gebruiken we nu nog wat aardgas voor koken, warm water en verwarming. We leveren meer elektriciteit dan we gebruiken. We hebben met opzet geen balansventilatie.
De bouwmaterialen zijn voor een groot deel duurzaam of hergebruikt: hergebruikte dakpannen in combinatie met nieuwe, accoya kozijnen, drents lariks op de zijgevels, fsc hout voor vlonders, deels leemstuc en leemverf, houtskelet met cellulose isolatie, schuimbeton fundering.
Het huis heeft vloerverwarming op een zandcement ondergrond en plaatselijk op een fermacell ondergrond, wat voor een sneller reagerend systeem zorgt. Op enkele plekken is er aanvullend wandverwarming. Door het vele glas op het zuiden gebruiken we veel passieve zonne-energie. Een dakoverstek voorkomt dat het ’s zomers te warm wordt. Bijna alle verlichting is led-verlichting.
In de tuin hebben we hergebruikt bestratingsmateriaal, fsc houten vlonders, kastanjehouten afrastering van de moestuin.
Toegepaste maatregelen
Extra informatie
Ervaringen
Toekomstplannen
Interviews
Veel belangstelling voor ‘weekend met een groen randje’ Anloo

Het was goed.
Het was zeer goed.
Het refrein van het scheppingsverhaal, zoals dat tijdens de oogstdienst in de Magnuskerk klonk, paste bij het ‘weekend met een groen randje’ van 3 tot en met 5 november. Alle onderdelen van het programma trokken ruim meer belangstelling dan verwacht.
Op vrijdagavond gonsde het onder de toren van de Magnuskerk al van activiteit. Maar liefst 1530 eerder bestelde gifvrije bloembollen werden afgehaald. Regelmatig ontstond er zelfs een wachtrij, waar dan leuke gesprekjes opbloeiden. Intussen kwamen veel levensmiddelen voor de Voedselbank binnen (waarvoor hartelijk dank!).
Op zaterdag trokken zowel de Natuurwerkdag bij het Speulkoelbos als het duurzaam open huis onverwacht veel deelnemers.
Bij het Speulkoelbos was het ’s ochtends Natuurwerkdag. Vogelkers en klimop werden onder handen genomen door een groep van twintig hard werkende vrijwilligers.
Een zelfde hoeveelheid mensen kwam naar het Warmejashuis in Anloo voor een rondleiding en lunchlezing over duurzaam bouwen door de bewoner / architect van het huis. Sommige mensen hadden zich aangemeld via de nationale Duurzame Huizen Route, anderen kwamen via dorp of kerk. Na een bezoek dat uiteindelijk meerdere uren in beslag nam, verlieten ze enthousiast het huis.
Ook ’s avonds was er een goede opkomst voor de borrel, soepenproeverij en presentaties van duurzame doeners. Wethouder Co Lambert vertelde wat de gemeente Aa en Hunze zoal aan duurzaamheid doet, èn wat er volgens hem nog wel wat beter kan. Ook viel te ontdekken dat hij een eigen ‘groen stokpaard’ heeft: het bevorderen van gebruik van kraanwater in plaats van water uit wegwerpflesjes. Met een paar goede tips konden de toehoorders meteen praktisch uit de voeten. Zo is er een gunstige zonnelening, waarmee de aanleg van zonnepanelen al vanaf het begin renderend is. Wat je maandelijks bespaart aan elektriciteit is meer dan wat je aan aflossing kwijt bent. Ook -of juist- geschikt voor mensen met een smalle beurs! (voor meer info zie www.drentsenergieloket.nl en www.energiesubsidiewijzer.nl).
Een panel van vijf mensen uit Anloo en de Magnuskerk vertelden hoe zij aan duurzaamheid werken. Ze hadden heel verschillende achtergronden en dat maakte de presentatie veelkleurig en interessant. Naast een melkveehouder die onderzoekt hoe je mais zo duurzaam mogelijk kunt bemesten zat bijvoorbeeld iemand die helemaal geen dierlijke producten gebruikt en zonder auto leeft. Verder was er een echtpaar, waarvan één van de partners zich zelfs derde-generatie-vegetariër mag noemen en iemand die lid is van een windmolencoöperatie.
De verschillende invalshoeken lijken groot, maar allemaal zetten ze groene stappen die bij hen passen en dragen zo bij aan een duurzamer wereld.
Zondag vormde de oogstdienst met cantorij Cantazet rondom de rijk versierde oogsttafel een indrukwekkende afsluiting van het geheel. Na afloop trok de Tuinclub Anloo met kerkgangers naar buiten om gifvrije bloembollen te planten. Zo eindigde een weekeinde vol inspiratie, bijzondere momenten en mooie ontmoetingen met een belofte voor het komende voorjaar.
Het weekend was georganiseerd door een groep mensen vanuit de Magnuskerk en het dorp Anloo. Onder de naam ‘Anloo vergroent’ wil de groep duurzaamheid een vaste plek in het dorp en de kerk geven. Het idee is om telkens kleine, passende stappen te maken. De eerste stappen zijn nu gezet. Dankzij de inzet en samenwerking van veel mensen kijkt Anloo terug op een geslaagd groen weekend. Op naar de volgende stap, in de hoop dat ook die goed wordt, of zelfs zeer goed.
Bron: Het gezinsblad, 6 november 2017, Veel belangstelling voor ‘weekend met een groen randje’ Anloo,verkregen via Het gezinsblad
Kenmerken
Kaart
Display external content from Google Maps.
Display external content from Google Maps.
📍 Het exacte adres wordt niet getoond.


















